d

Ristrutturazione e conservazione del fabbricato “Casa del Fattore” ad Arborea

sintesi progetto

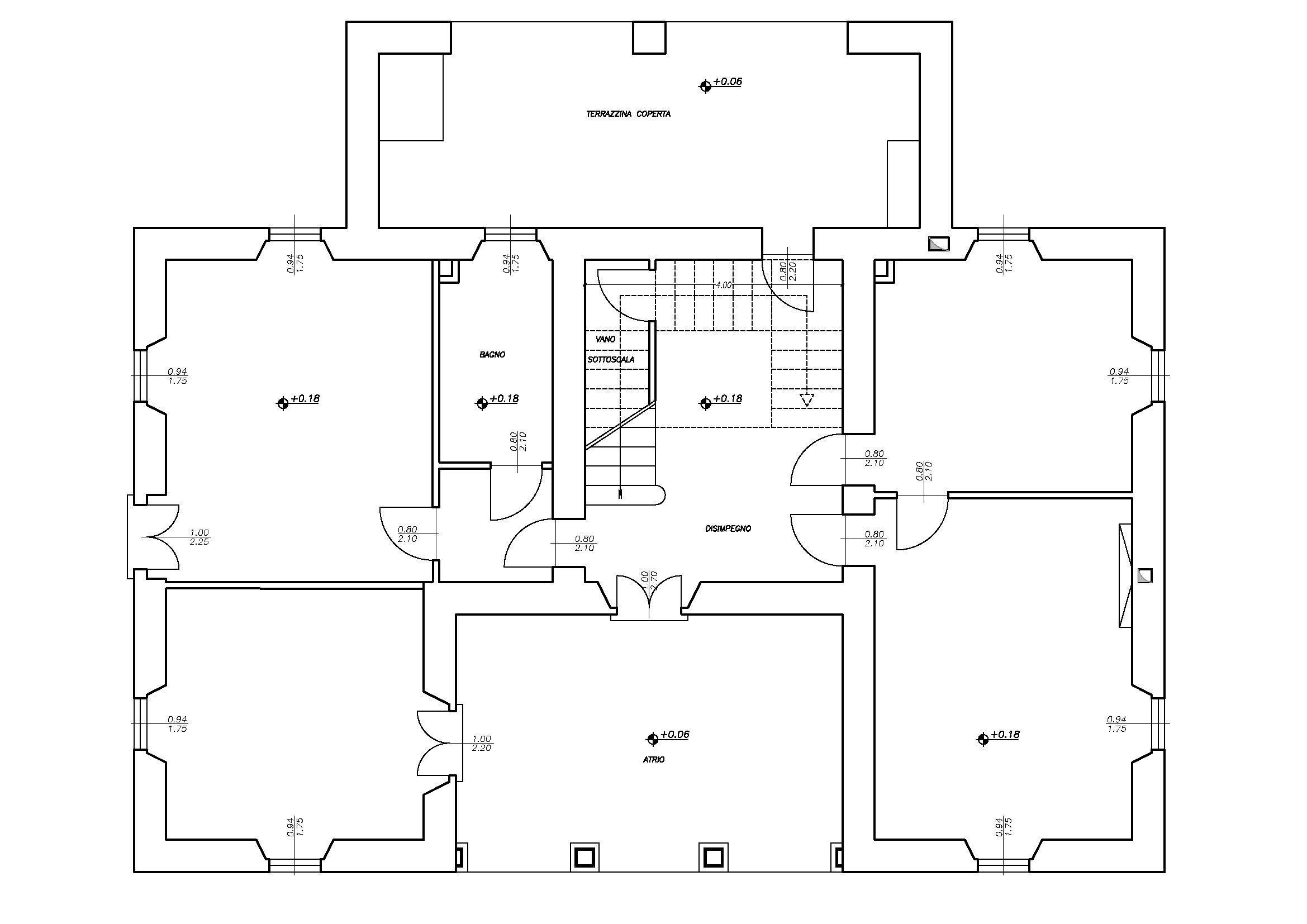
Gli interventi proposti sono tali da non snaturare sostanzialmente la configurazione originaria del manufatto, risalente agli anni ’20 –’30 del secolo scorso, e non fargli perdere il suo carattere di originalità. Sono interventi rivolti a “conservare l’organismo edilizio e ad assicurarne la funzionalità mediante un insieme sistematico di opere che, nel rispetto degli elementi tipologici, formali e strutturali, dell’organismo stesso ne consentono destinazioni d’uso con esso compatibili”.


Tali interventi comprendono “il consolidamento, il ripristino e il rinnovo degli elementi costitutivi dell’edificio, l’inserimento degli elementi accessori e degli impianti richiesti alle esigenze dell’uso, l’eliminazione degli elementi estranei all’organismo edilizio”.

Settore

Pubblico

Importo

€ 261.148,70

Categoria
Data
d
Sed ut perspiclatis unde olnis iste errorbe ccusantium lorem ipsum dolor